• Impressum
  • Kontakt
House and friends
Architektur & Design
Die Wohlfühl-Raum-Gestalter
Toggle Navigation
  • Home
  • Informieren und Beraten
  • Modernisieren
  • Umgestalten
  • Das perfekte Möbel
  • Accessoires
  • News

Beitrags CSS-Klasse: aktuelle-projekte

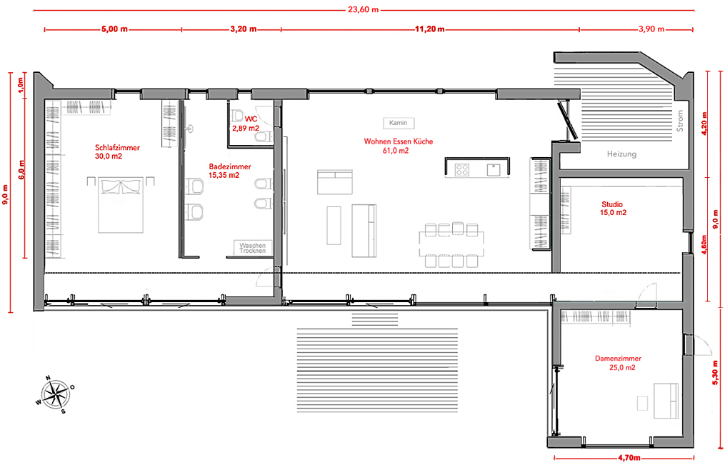
Das Wohlfühlhaus am Hang

Das schmale Hanglagen-Grundstück mit altem Baumbestand erfordert eine Archtiktur, die sich nicht nur einfach integriert, sondern vielmehr eins mit der Natur wird. Von Beginn an war eine ebenerdige Wohnlandschaft angedacht. Unser Hauptaugenmerk galt dem Licht: - Überdimensionale Fensterflächen sorgen in nahezu allen Räumen für ein lichtdurchflutetes fröhliches Wohlfühlszenario und lässt den stimmungsvollen Wohnbereich mit dem lebendigen Baumgarten verschmelzen. Das teilweise unterkellerte Wohlfühlhaus besticht in seiner unübertroffenen Leichtigkeit nicht nur durch seine moderne und einfache Struktur, sondern vielmehr durch seine unkomplizierte, zeitlich unbegrenzte Nutzbarkeit seiner Bewohner bis ins hohe Alter und beinahe selbstverständlich, einer zukunftsweisenden Nachhaltigkeit die keine Wünsche offen lässt.

Hochwertige Baumaterialien sowie ein außergewöhnliches Interior Design runden das HOUSE AND FRIENDS Konzept zu einem Wohlfühlort ab.

Seite 24 von 26

  • 17
  • 18
  • 19
  • ...
  • 21
  • 22
  • 23
  • 24
  • ...
  • 26

© 2026 HOUSE AND FRIENDS